Seljaborg, Tungusel 2 - stakstæðar stofur
Tungusel 2. - Seljaborg.
Lokið er færslu á nýju gönguhliði inn í leiskólann. Verður það nýtt á meðan á framkvæmdatíma stendur.
Verið er að undirbúa framkvæmdir á endurnýjun á lögnum norðanmegin við núverandi hús. Nánari upplýsingar um göngu leiðir meðfram húsinu verða settar inn á síðuna þegar að sú vinna fer af stað.
Unnið er að jarðvinnu til að koma fyrir sökklum og staðsetningu í nýjum stofum.
Á verkstað á Selfossi er unnið að smíða á nýju stofunum.
Verkið er á áætlun.
20. desember 2025
Tungusel 2. - Seljaborg.
Unnið er að jarðvinnu til að koma fyrir sökklum og staðsetningu í nýjum stofum.
Á verkstað á Selfossi er unnið að smíða á nýju stofunum.
Verkið er á áætlun.
10. desember 2025
Verktaki hefur lokið við að girða af vinnusvæði sem hann mun nýta fyrir aðföng og aðkomu inn á framkvæmdasvæðið. Það hefur verið nauðsynlegt að girða af núverandi bílastæði til aðstöðusköpunar fyrir framkvæmdina.
Næstu skref hjá verktaka er að hefja vinnu við að grafa grunninn og setja sökkla.
Á meðan framkvæmdatíma stendur munu foreldrar nýta inngang við Öldusel.
Sett verður upp nýtt inngangshlið frá stíg sem gengur upp meðfram skólalóðinni.
Nýju húsin og tengibygging eru smíðuð á verkstað verktakans til að takmarka rask á framkvæmdatíma.
Ráðgert er að koma með húsin í janúar.
Gera má ráð fyrir vinnu verktakans á svæðinu fram í lok febrúar.
9. desember 2025
Upplýsingar varðandi stöðu á vinnu eftir daginn í dag á staðnum:
• Verktaki hefur lokið við að koma upp girðingu.
• Unnið er að því að undirbúa hliðin og farið verður í færslu á hliði.
• Svo í framhaldi þegar girðingar og hlið eru klár hefst jarðvinnan á staðnum.
Hvað verður gert?
Í leikskólanum Seljaborg er í dag strafræktar 3 deildir með 46 börnum.
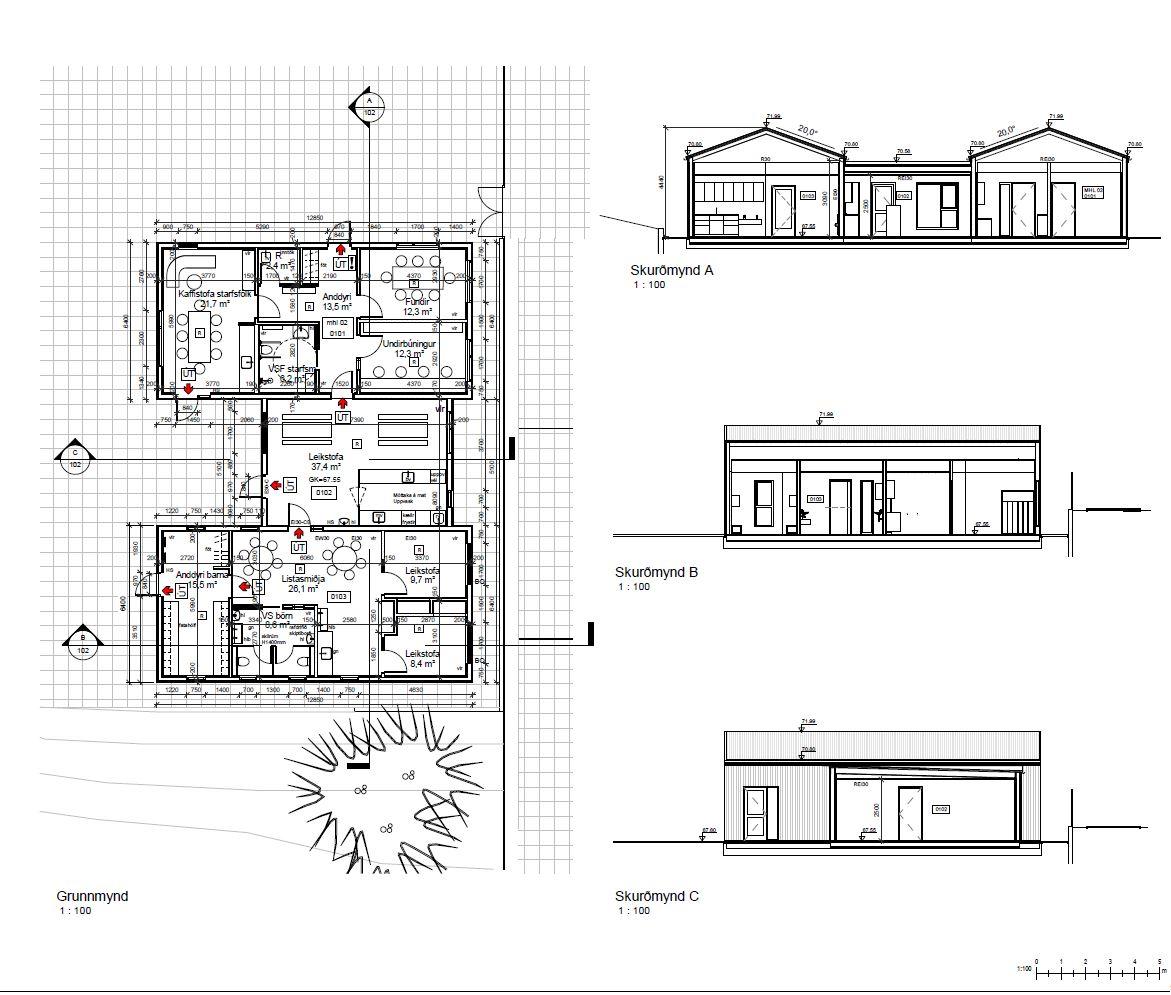
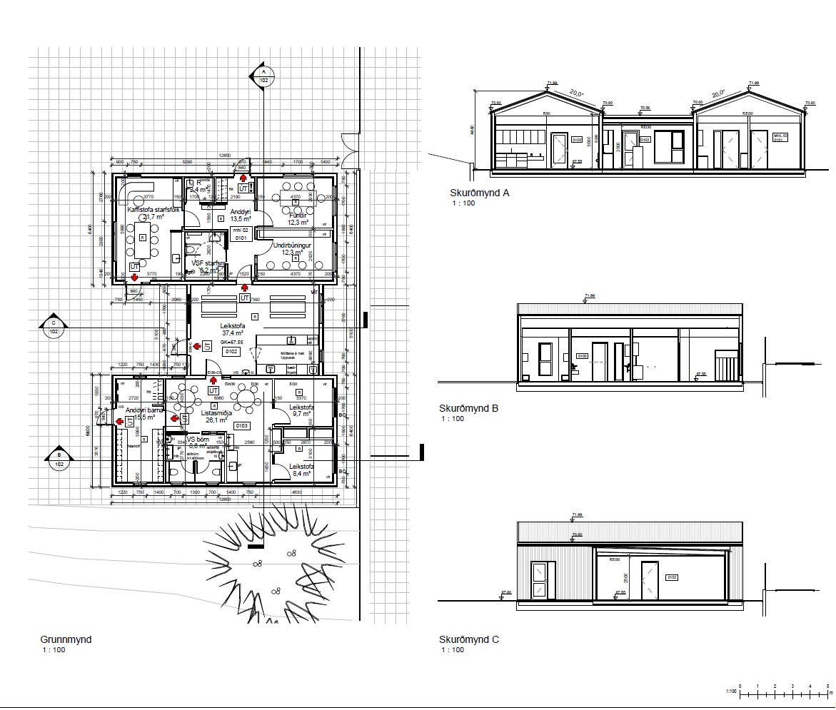
Í öðru húsinu er gert ráð fyrir aðstöðu fyrir börnin, fatahólfum, snyrtingu, leikrýmum og listasmiðju. Í tengibyggingu verður matstofa sem einnig er fjölnota rými. Matur verður fluttur á milli frá núverandi húsi.Í annarri skólastofunni er gert ráð fyrir starfsmannaaðstöðu fyrir skólann, með kaffistofu, undirbúningsrými og fundaraðstöðu.
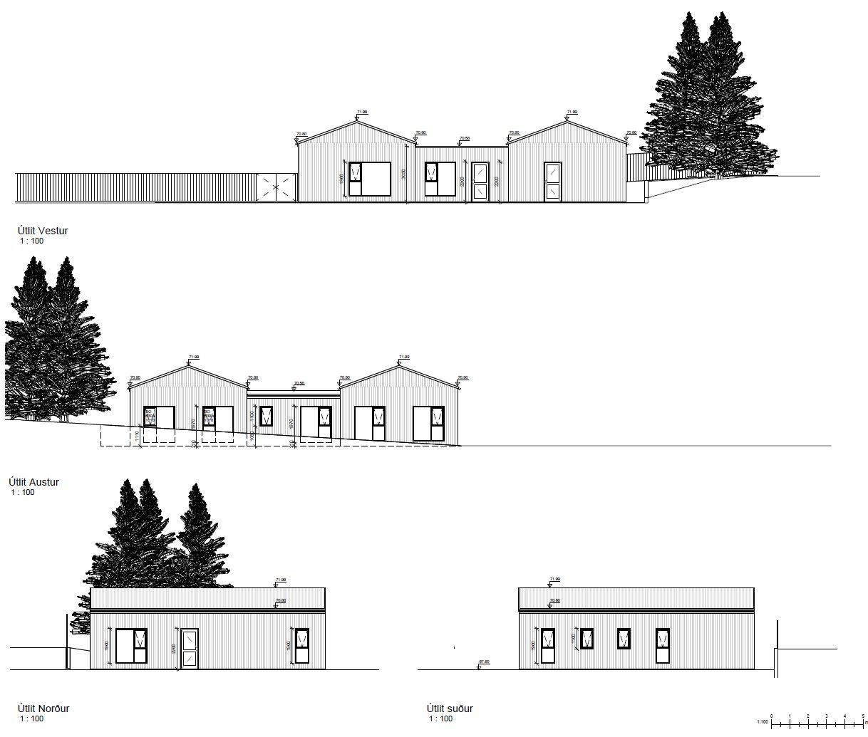
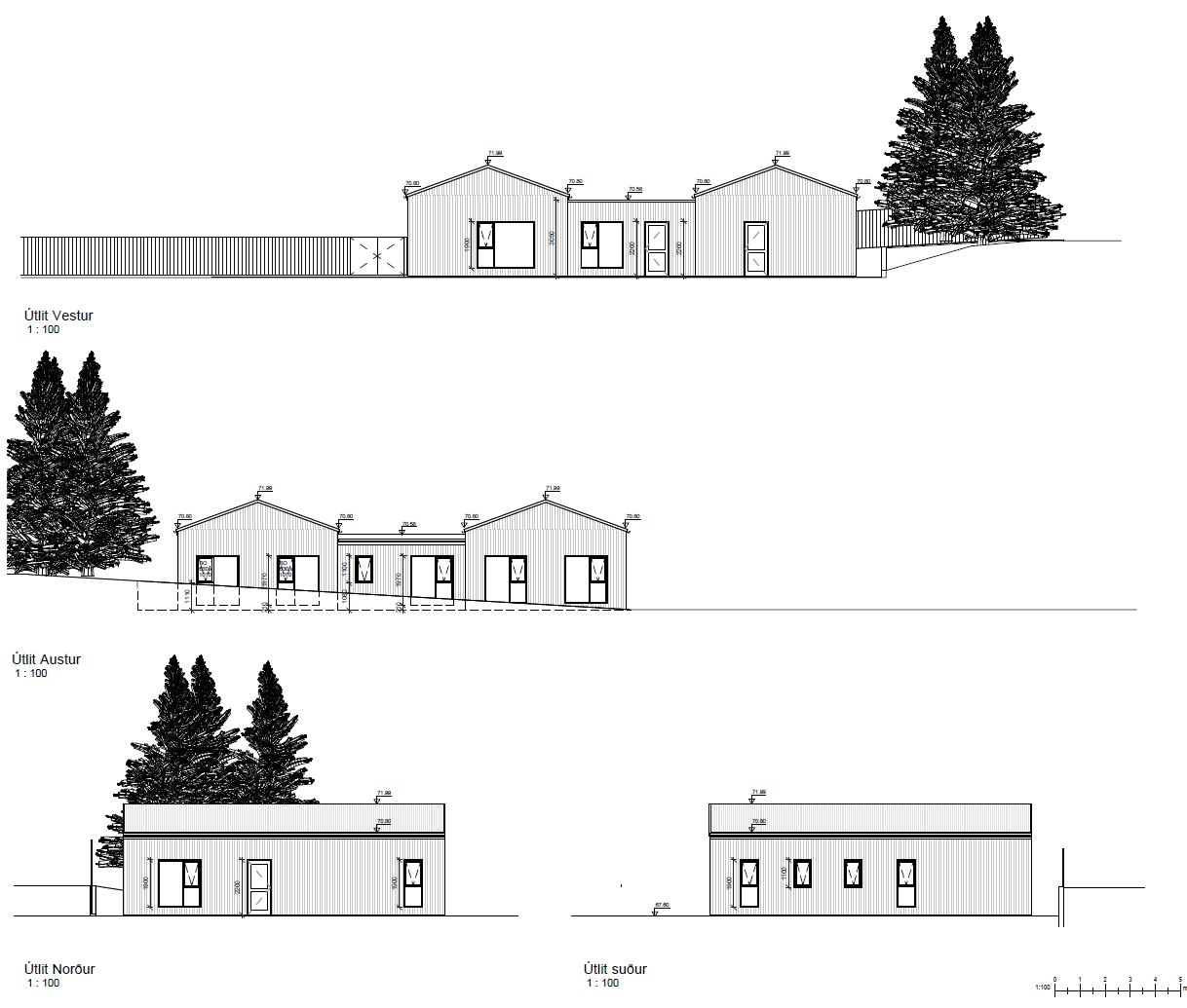
Fyrirhugað er að setja nýjar kennslustofur og tengibyggingu á lóð við Seljaborg.
Útboði vegna færanlegra stofa við Seljaborg er lokið. Alls bárust fjögur tilboð.
Samið var við Eðalbyggingar og verða stofurnar smíðaðar utan lóðar.
Á meðan á byggingu þeirra stendur á að grafa lagnaskurð frá núverandi byggingu og að nýjum húsum. Stefnt er að því að ljúka þeim hluta framkvæmdarinnar áður en komið verður með húsin. Frágangur lóðar er einnig hluti af verkinu. Endurnýja þarf þann hluta lóðarinnar þar sem nýjar stofur koma og ganga frá yfirborði.
Hvernig gengur?
Framkvæmdir
Verkið er á áætlun.
Verið er að smíða stofurnar á verkstað verktakans.
Verktakinn mun byrja að girða af vinnusvæðið í byrjun næstu viku. Í framhaldinu verður farið að grafa fyrir sökklum á nýjum stofum.
Aðgangur að leikskólanum er annar á meðan framkvæmdum stendur. Sendar hafa verið út leiðbeiningar til foreldra varðandi það.
Framkvæmdir í nóvember
Smíðí á stofunum gengur vel.
Búið er að reisa burðargrind hússins, verið er að loka útveggjum og stefnt að því að loka gólfum á næstu vikum.
Útboð
Alls bárust fjögur tilboð í framkvæmdir á færanlegum stofum við Seljaborg. Eðalbyggingar munu smíða húsin. Gert er ráð fyrir því að húsin komi fullbyggð á staðinn.
Framkvæmdir
SG hús eru að smíða húsin fyrir Reykjavíkurborg.
Eru þau smíðuð á verkstað byggingarverktaka og verða flutt fullbúin á Seljaborgina.
Alls bárust fjögur tilboð í framkvæmd á færanlegum stofum við Seljaborg. Verið er að yfirfara tilboðin.
Leikskólinn Seljaborg
Í undirbúningi og hönnun eru tvær stakstæðar stofur og tengibygging sem verða staðsettar á lóð leiskólans Seljaborg.
-
Í öðru húsinu er gert ráð fyrir aðstöðu fyrir börnin, fatahólfum, snyrtingu, leikrýmum og listasmiðju.
-
Í tengibyggingu verður matstofa sem einnig er fjölnota rými. Matur verður fluttur á milli frá núverandi húsi
-
Í annarri skólastofunni er gert ráð fyrir starfsmannaaðstöðu fyrir skólann, með kaffistofu, undirbúningsrými og fundaraðstöðu.