Leikskólinn Hólaborg – kennslustofur, hönnun, smíði og lóðarfrágangur

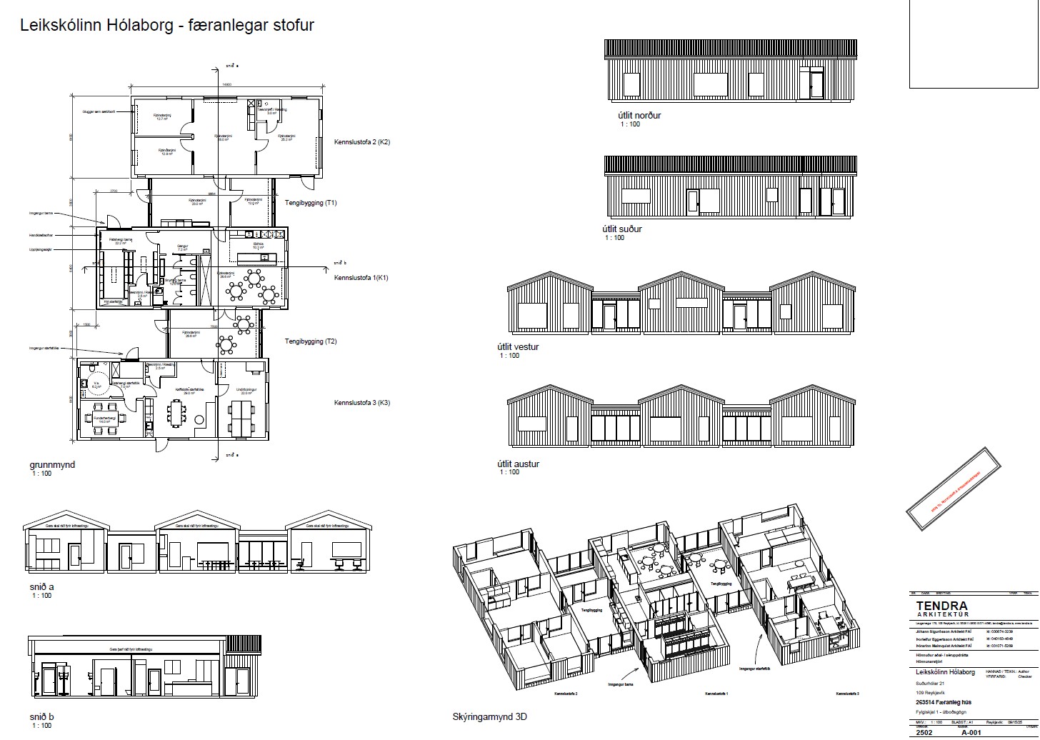
Framkvæmd felur í sér hönnun, smíði og flutning þriggja kennslustofa. Kennslustofunar eru á einni hæð, hver um sig 14,9 m x 6,4 m að stærð, eða um 96 m². Auk þess verða tvær tengibyggingar, annars vegar um 40 m² og hins vegar um 30 m². Heildarstærð nýs húsnæðis verður því um 360 m². Kennslustofurnar skulu byggðar úr timbri og uppfylla viðeigandi byggingarkröfur og reglugerðir. Verkið nær einnig til lóðarvinnu í samræmi við fyrirliggjandi hönnun.
Undirbúningur
Undirbúningur
Í framkvæmd
Í framkvæmd
Lokið
Lokið

Myndir

Hvað verður gert?

Framkvæmd felur í sér hönnun, smíði og flutning þriggja kennslustofa. Kennslustofunar eru á einni hæð, hver um sig 14,9 m x 6,4 m að stærð, eða um 96 m². Auk þess verða tvær tengibyggingar, annars vegar um 40 m² og hins vegar um 30 m². Heildarstærð nýs húsnæðis verður því um 360 m². Kennslustofurnar skulu byggðar úr timbri og uppfylla viðeigandi byggingarkröfur og reglugerðir. Verkið nær einnig til lóðarvinnu í samræmi við fyrirliggjandi hönnun. 

Að auki verður dren lagfært á núverandi húsnæði. 

Hvernig gengur?

Framkvæmdartími er:

Árið 2026

Hver koma að verkinu?

Reykjavíkurborg

Verkkaupi - Skrifstofa framkvæmda og viðhalds fyrir hönd Eignaskrifstofu og Skóla-og frístundasviðs

Eftirlit framkvæmdar

Hnit

Verktaki

Terra einingar
Síðast uppfært 17.12.2025