Fossvogsblettur - Nýr leikskóli

Um er að ræða fullnaðarhönnun, útvegun og uppsetningu 10 deilda leikskólabyggingar úr forsmíðuðum timbureiningum við Fossvogsblett 2-2A í Reykjavík. Botnplata er staðsteypt. Byggingin er 2.194 m2.
Haust 2025 - Vor 2027
Undirbúningur
Undirbúningur
Í framkvæmd
Í framkvæmd
Lokið
Lokið

Fossvogsblettur

Hvað verður gert?

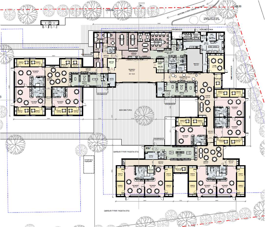
Leikskólabyggingin, mhl 01, er ein hæð með „flötu “ þaki og stendur austast á lóðinni. U-laga form hennar myndar eins konar faðm til vesturs þar sem skjólgott og rólegt útisvæði myndar aðkomutorg leikskólans. Sorp- og hjólageymslur eru í sérbyggingum, mhl 02 og 03.
 

Skólinn mun hýsa 10 leiskóladeildir sem dreifast í þrjá húshluta. Hver deild samanstendur af heimastofu, tveimur hóprýmum og snyrtingu. Deildirnar sameinast um matstofur og opin rými.
 

Yngstu börnin eru í suðurhluta byggingarinnar þar sem eru fjórar deildir. Miðstig skólans verður í austurhlutanum þar sem eru þrjár deildir og elstu börnin verða í norðvesturhluta byggingarinnar þar sem eru þrjár deildir. Í norðurhluta byggingarinnar, á milli deilda mið- og efsta stigs, eru fjölnotasalur, bókasafn/opið rými, listasmiðja, eldhús skólans ásamt aðstöðu starfsfólks.
Sérstakur inngangur er í hvern húshluta leikskóladeildanna, í góðum tengslum við fataherbergi nemenda sem svo tengjast beint við matstofur/opin rými deildanna.
Inngangur starfsfólks er að norðanverðu og tengist beint við aðstöðu þess. Inngangur í eldhús leikskólans er einnig að norðanverðu. Inngangur fyrir gesti er að norðvestanverðu, í góðum tengslum við rými yfirstjórnar skólans.

Í grunninn er fyrirkomulag deildanna mjög líkt að undanskildum snyrtingum þeirra. Á deildum fyrir yngstu börnin sameinast tvær deildir um snyrtingu. Snyrtingarnar taka mið af aldurshópnum og þ.a.l. er gert ráð fyrir tveimur skiptiborðum, tveimur salernum og koppasvæði á hvorri snyrtingu. Á deildum fyrir eldri nemendur hefur hver deild sína snyrtingu þar sem gert er ráð fyrir tveimur salernum og möguleika á skiptiborði. Á öllum snyrtingum er gerð ráð fyrir nemendum í hjólastól. Einnig er gert ráð fyrir snyrtingum í tengslum við fataherbergi nemenda.

Gert er ráð fyrir að aðstaða starfsfólks geti rúmað allt að 60 manns samtímis. Í tengslum við aðstöðu þess eru þrjár snyrtingar, þar af ein með sturtu. Til viðbótar við þær er gert ráð fyrir einni snyrtingu fyrir starfsfólk í suðurhluta byggingarinnar. Allir starfsmenn fá munaskáp í aðstöðu starfsfólks.
 

Eldhúsið er framleiðslueldhús þar sem hádegisverður er eldaður. Morgunverður og kaffihressingar verða jafnframt útbúnar á staðnum. Starfsfólk eldhússins hefur sérsnyrtingu ásamt skiptiaðstöðu við hlið eldhússins.
 

Byggingin verður Svansvottuð.

Hvernig gengur?

Janúar 2026

Framkvæmdir hefjast.

Búið er að fella þau tré sem þarf vegna nýbyggingar og byrjað er að grafa fyrir byggingu. 

Desember 2025

Aðaluppdrættir hafa verið samþykktir af byggingarfulltrúa. Framkvæmdir munu hefjast á nýju ári. 

Nóvember 2025

Aðaluppdrættir hafa verið lagið inn til byggingarfulltrúa. 

Stefnt er á að hefja jarðvinnu á þessu ári.

Hver koma að verkinu?

Verkkaupi

Reykjavíkurborg
Umhverfis- og skipulagssvið
Skrifstofa framkvæmda og viðhalds

Umsjón, eftirlit og byggingarstjórn

Efla hf.

Verktaki

K16 ehf
Síðast uppfært 02.02.2026