Leikskólinn Hagaborg - endurgerð

Gagngerar viðhaldsframkvæmdir og endurbætur á leikskólanum Hagaborg.
2025 - 2029
Undirbúningur
Undirbúningur
Í framkvæmd
Í framkvæmd
Lokið
Lokið

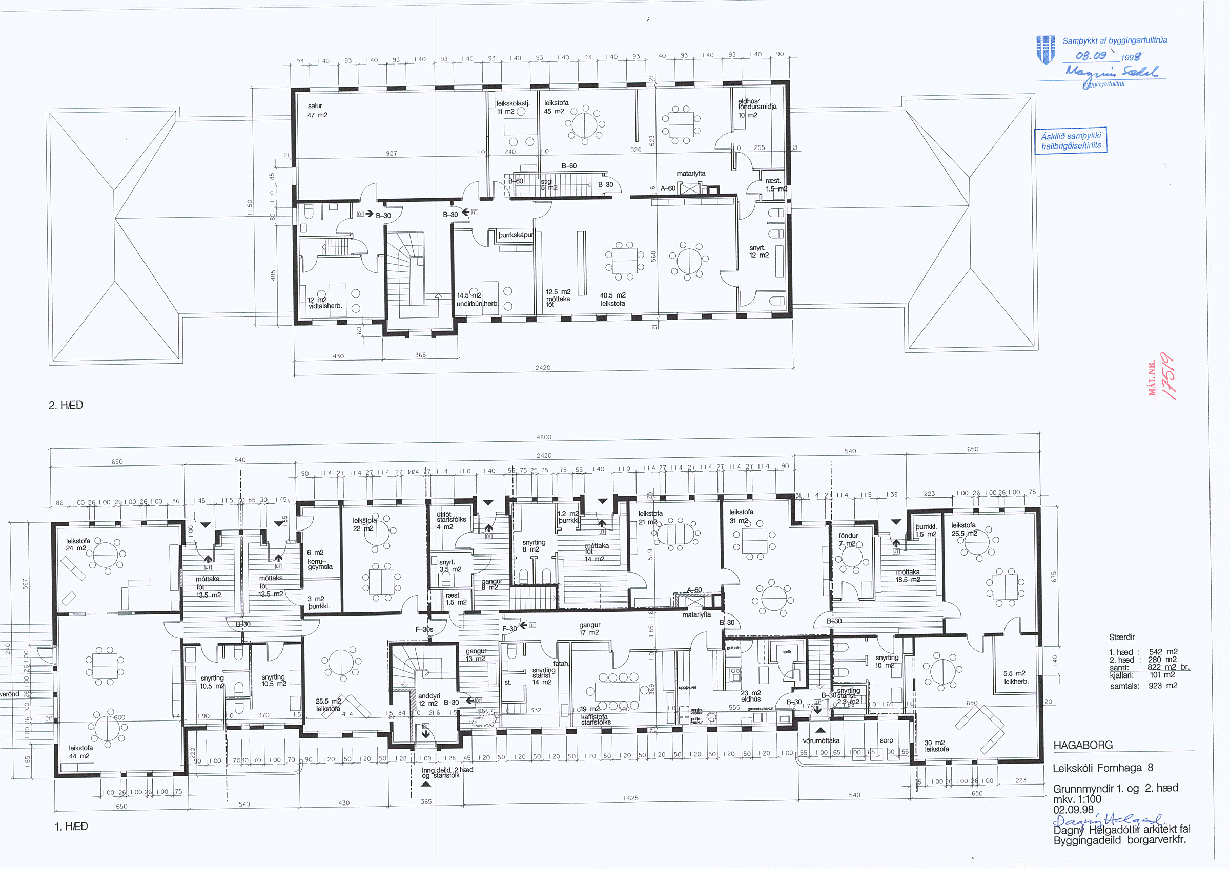
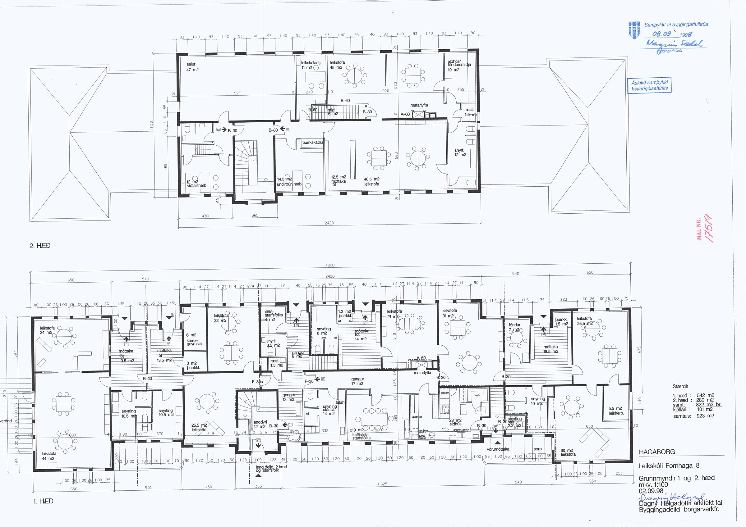
Yfirlitsmyndir og teikningar

Hvað verður gert?

Gerð hefur verið heildstæð ástandsskoðun á megin húsnæði Hagaborgar sem byggt var árið 1958 og erum 945m2 að stærð. Ástandsskoðunin gaf til kynna verulega endurnýjunarþörf og hefur því starfsemi í húsinu verið hætt. Á lóð skólans eru einnig færanleg timburhús sem komið var fyrir árið 2022 og heldur starfsemi áfram í þeim.

Á haustmánuðum árið 2025 var farið í valkostagreiningu á verkefninu en í kjölfar hennar var ákveðið að ráðast í heildstæða endurgerð á húsnæðinu. Þær framkvæmdir grundvallast á:

  • Endurnýjun glugga og hurða
  • Endurnýja vatns- og rafmagnslagna
  • Endurgerð gólfs á jarðhæð og uppsetning gólfhita
  • Drenlögn í kringum bygginguna
  • Bættri hljóðvist og lýsingu
  • Uppsetning á lyftu
  • Vélrænni loftræsingu í öllum rýmum
  • Utanússklæðningu og útveggjaeinangrun

Áætlað er að framkvæmd við heildstæða endurgerð hefjist á sumar- eða haustmánuðum árið 2026. Gera má ráð fyrir að framkvæmdir standi yfir í 2 – 3 ár. 

Fyrirhugað er að endurgerð húsnæðisins verði Svansvottuð.

Hvernig gengur?

Vetur 2025 - Vor 2026

Undirbúningur og hönnun stendur yfir.

Framkvæmd hefur verið umhverfisgreining.

Haust 2025

Starfsemi hefur verið færð í annað húsnæði hjá Reykjavíkurborg.

Vinna í undirbúningsfasa er hafin, verið er að fara yfir valkostagreiningar, fýsileikakönnun og kostnaðarmeta.

Farið verður í förgun lausamuna í húsnæðinu.

Hver koma að verkinu?

Verkkaupi

Reykjavíkurborg
Umhverfis- og skipulagssvið
Skrifstofa framkvæmda og fasteignaþjónustu

Hönnuðir og Ráðgjafar

VA arkitektar - Arkitektahönnun og hönnunarstjórn

Cowi Ísland - Ástandsskoðun, Brunahönnun og Hljóðvistarhönnun

VSB Verkfræðistofa - Loftræsi-, Lagna-, Burðarþols-, rafmagns- og lýsingarhönnun

Verkvist - Umhverfisgreining, Svansvottun, niðurrif
Síðast uppfært 06.03.2026