Fjölskyldu og húsdýragarðurinn - Hlaða

Framkvæmdin felur í sér breytingu á geymslu í núverandi Hlöðu í fræðslurými.
Haust 2025 - Sumar 2026
Undirbúningur
Undirbúningur
Í framkvæmd
Í framkvæmd
Lokið
Lokið

Fjölskyldu og húsdýragarðurinn - Hlaða

Hvað verður gert?

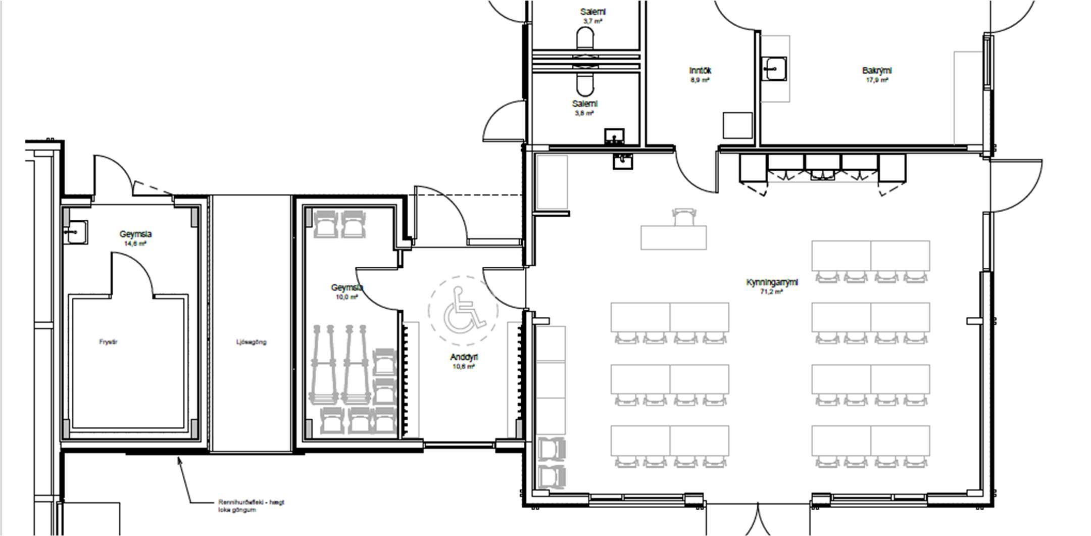
Heildarstærð rýmis er 71 m2. Eftir framkvæmdir mun rýmið nýtast í fræðslustarfssemi og kennslu fyrir skólahópa. Einnig verður hægt að nota rýmið fyrir sýningar og í almenna útleigu.

Samhliða breytingum á Hlöðunni verður byggð uþb. 36 m2 viðbygging milli hlöðu og fjóss sem notuð verður í anddyri fyrir fræðslurými ásamt geymslu.

Í framkvæmdunum munu núverandi tæknikerfi verða uppfærð miðað við núverandi reglugerðir og loftræsingu bætt við. 

Hvernig gengur?

Janúar 2026

Hlaða

Áframhaldandi vinna inni í hlöðu við niðurrif eldri búnaðar. 

 

Tengibygging

Búið er að steypa sökkla og lagningu grunnlagna lokið.  

Desember 2025

Hlaða

Áframhaldandi vinna inni í hlöðu við niðurrif eldri búnaðar. 

 

Tengibygging

Búið er að grafa fyrir tengibyggingu og unnið er í undirbúningi sökkla. 

Nóvember 2025

Framkvæmdir hefjast. 

 

Hlaða

Byrjað er að rífa innan úr Hlöðu og undirbúa undir nýja glugga og hurðir

 

Tengibygging

Búið er að taka upp núverandi hellur og snjóbræðslu og byrjað er að grafa fyrir undirstöðum nýrrar viðbyggingar. 

Hver koma að verkinu?

Verkkaupi

Reykjavíkurborg
Umhverfis- og skipulagssvið
Skrifstofa framkvæmda og viðhalds

Umsjón, eftirlit og byggingarstjórn

VSB-verkfræðistofa ehf.

Verktaki

JS-hús ehf.
Síðast uppfært 02.02.2026