Endurgerð á grenndarstöðvum í Reykjavík 2025

Enn betri grenndarstöð.
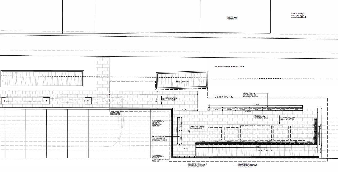
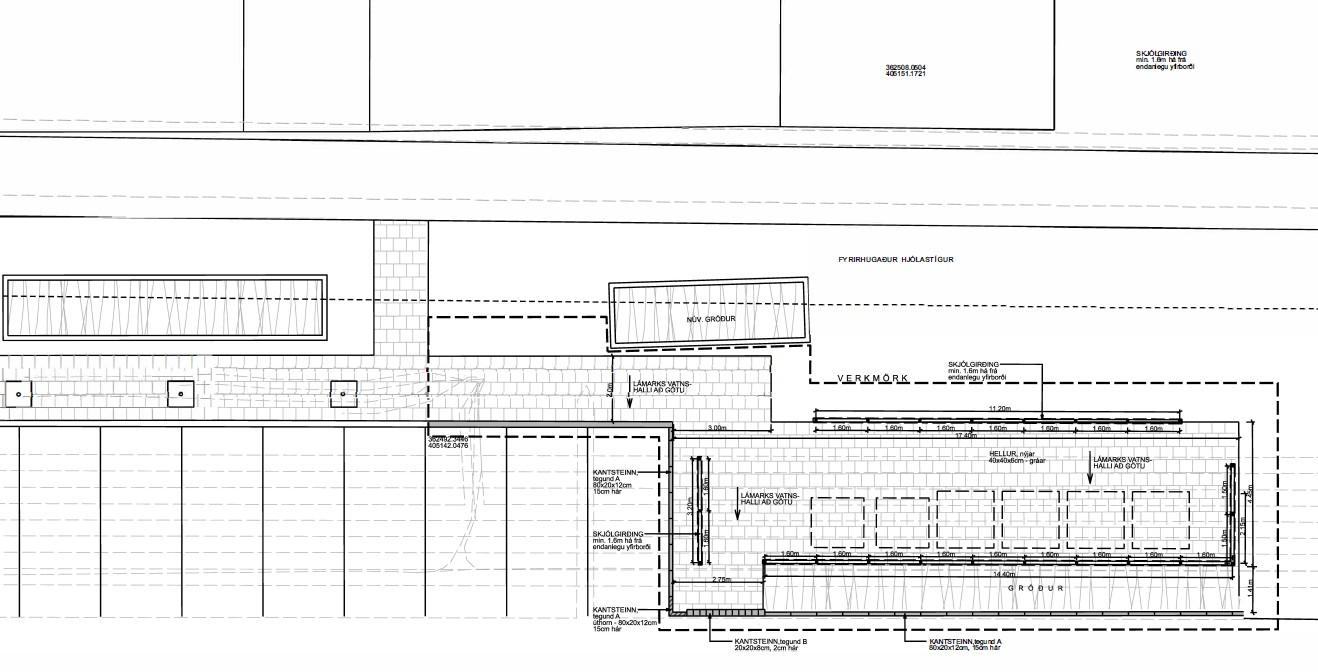
Hér fara fram endurbætur á fjórum grenndarstöðvum í Reykjavík, við Orrahóla, Dalshús, Streng og Seljabraut
Helstu verkliðir eru upptaka á núverandi yfirborði og yfirborðsefnum, jarðvinna, hellu- og kantsteinslögn, grasþakning og smíði timburskjólveggja.

júní 2025 - október 2025
Undirbúningur
Undirbúningur
Í framkvæmd
Í framkvæmd
Lokið
Lokið

Yfirlitsteikningar og myndir

Hvernig gengur?

september 2025

Fallið hefur verið frá framkvæmdum við Streng og leitað er að annarri staðsetningu fyrir grenndarstöðina. 

september 2025

Framkvæmdum er að mestu lokið við Seljabraut en einhver bið er á framkvæmdum við Streng.  Beðið er eftir leyfi til graftar nálægt lifandi lögnum. 

ágúst 2025

Framkvæmdum er að mestu lokið við Dalhús og við Orrahóla er vinna langt komin.   Í viku 34 eru framkvæmdir að fara af stað við Seljabraut og í framhaldinu verður byrjað á framkvæmdum við Streng. 

Hver koma að verkinu?

Verkkaupi

Umhverfis- og skipulagssvið Reykjavíkurborgar
Borgartún 12–14
105 Reykjavík

Verkefnastjóri verkaupa

Ásgeir M. Rudolfsson
Umhverfis- og skipulagssvið Reykjavíkurborgar
Síðast uppfært 23.09.2025